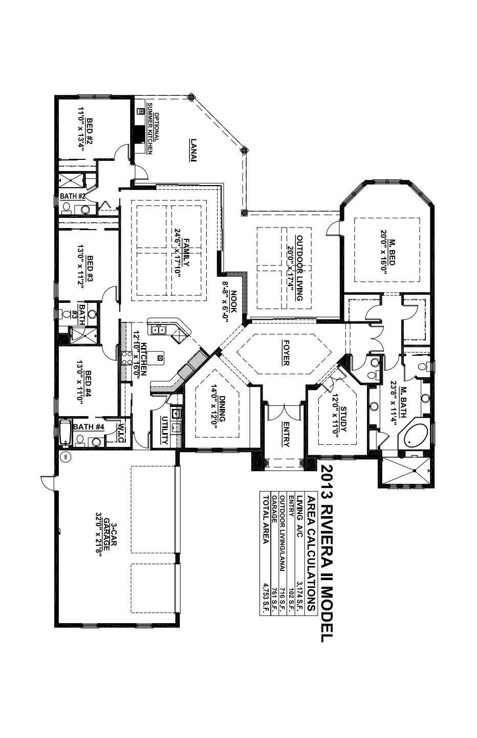
Riviera II

Riviera II

  • 4
  • 4
  • 1
  • 3
  • 3,174 Living
  • 4,753 Total

Four Bed, Four Full and One Half Bath, Family Room, Foyer, Dining Room, Study, Outdoor Living, Three Car Garage

Floorplan

PDF for Print

Riviera II